Chuyên Thang Máy Tải Khách Mitsubishi 100% Nhập Nhật. Xem Ngay Siêu Tiết Kiệm Điện....
Thang Máy Mitsubishi Chính Hãng Nhập 100% Nhật – Tiết Kiệm Điện Công Ty Đại...
Lắp Thang Máy Tải Khách Mitsubishi Ngay! 100% Nhập Khẩu Nhật Siêu Tiết Kiệm Điện....
NHỮNG VẤN ĐỀ MÀ BẠN ĐANG GẶP PHẢI: – Thang máy sử dụng lâu ngày...
THANG MÁY TIẾT KIỆM DIỆN TÍCH Ngày nay ở các thành phố lớn như Hà...
THANG MÁY THANG MAY GIA ĐÌNH THANG MÁY TẢI HÀNG THANG MÁY TẢI THỰC PHẨM...
Công ty thang máy đại lộc phát Đối với công trình có sử dụng thang...
Bản vẽ thiết kế thang máy tốt nhất? Một vấn đề mà chủ nhà rất quan...
Bảo trì thang máy Bảo trì thang máy là một phần không thể thiếu được...
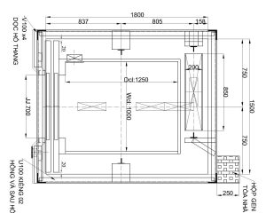
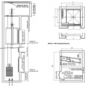
Bản vẽ thiết kế thang máy tải khách Bản vẽ thiết kế thang máy tải...
Thang máy tải khách BÁO GIÁ THANG MÁY TẢI KHÁCH MỚI NHẤT NĂM 2021 Báo...
Những bộ phận quan trong nhất trong thang máy tải khách Thang máy tải khách...
Tìm giải pháp thang máy cho gia đình của bạn Thông thường là khi nhắc...
Thang máy tải khách mitsubishi Thang máy Mitsubishi là một trong những lọai thang máy...
Thang máy liên doanh So sánh thang máy liên doanh và thang máy nhập khẩu...
Một số mẫu thang máy tải khách hiện đạiGiới thiệu một số mẫu thang máy...