Thang Máy Chuyển Đồ Ăn Mitsubishi Nhập Nhật 100% – Lắp Ngay! Siêu Tiết Kiệm...
5 / 5 ( 1 bình chọn )...
5 / 5 ( 2 bình chọn )...
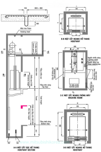
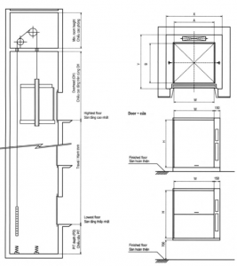
Trong một nhà hàng, khách sạn hay trường học lớn, để phục vụ bữa ăn...